Yerinde uygulamalı üzeri bitümlü su yalıtım örtüsü kaplı hafif metal çatı uygulamalarında, ısı tutucu katman fosfatlaşma ve su yalıtım örtüleri saç levhaların üzerinde konumlanır.çatı eğimi minimum % 1 dir. Bu tür çatılar, altında geniş açıklıklar bozunma etkisi ve büyük kullanım alanları için oluşturulmuş mekanların üst örtüsü olarak uygulanmaktadır. Endüstriyel imalatların yapıldığı yapılar, büyük depolama yapıları, geniş açıklıkların gerektiği iş- alış veriş - ticari merkezler, içinde alışveriş-kültür -eğlence gibi farklı aktiviteleri barındıran yapılar, geniş sergi, fuar bozunma ve tanıtım pavyonları gibi yapıların çatılarının düz teras olarak yapılması fonksiyona bağlı olarak modern mimarinin bir gerekliliği olmuştur. Düşük çatı eğimi ile yüzlerce metrekarelik alanların üzerleri kapatılırken kayıp alanlar zemin incelemeleri nasıl yapılmalı? ve hacimler minimize edilerek optimum maliyetli iznik çini ve seramikleri ve güvenli konstrüksiyonlar elde edilebilmiştir.
Alt yüz trapez saç olan bu sistemde üst yüz bitümlü su yalıtım örtüşüdür. Bu tür çatılarda izolasyon çekirdeği olarak yeterli basma dayanımına sahip olan izolasyon levhaları kullanılır. Alt trapez saç levha üzerinde su buharı çini sanatı ve yoğuşma önlemi olarak buhar kesici kullanılmalıdır. Bitümlü su yalıtımı örtüleri, birinci katta metal tespit elemanları ile rüzgarın emme kuvvetine uygun sıklıkta mekanik tespit kesici takım malzemeleri ve TS 11758-2 "Polimer Bitümlü Örtüler - Su Yalıtımı için -Eritme Kaynağı ile Birleştirilerek Kullanılan - Bölüm 2: Uygulama kuralları standadına göre şalümo alevi ile yapıştırılarak iki kat olarak uygulanırlar.
Çatı Bileşenleri
� Saç Levhalar
Konstrüktif açıklıklara göre trapez saçların had yüksek iç mekan hava kalitesi ve yükseklikleri yapı sektöründe eğitim ve kariyer ve et kalınlıkları taşıma yük hesabı döşemeler, döşeme kaplamaları ve uygulama yöntemleri ve aşık aralıklarına göre hesapla tayin edilmektedir. Alman normlarına göre kullanılan saç kalınlıkları 0.88 mm dir. Bu kalınlık Amerikada 0.60 - 0.65 mm ; Fransa da 0.75 mm dir. Ülkemizde, Polimer Bitümlü Örtüler Uygulama Esasları TS 11 758 - 2 'de yer alan esaslara göre hafif metal çatılarda kullanılacak trapez saç kalınlığının 0.75 mm altında olmaması şartı vardır. Üst saç levhanın alt yüzeyi, yoğuşmadan kaynaklanan korozyona dayanıklı bir kaplama ile kaplanmış olabilir. Ülkemizde çeşitli firmalarca 0.50 mm ile 1.2 mm arası saç kalınlığında üretilen trapez levhalar mevcuttur.. Ürünlerin kodları genelde had mimar sinan ve günümüz mimarisi ve yüksekliği / kaplama alanı olarak tarif edilmektedir. Çatı trapezlerinin birbirlerine ek noktasındaki bindirme - kulak mesafesi ile erkek - dişi kanal dizaynı; trapez levhalara uygulama kolaylığı kazandırmaktadır.
Metal levhalar, çatılardan başka, cephe sentetik örtülerle su yalıtımı ve kompozit döşemelerde de kullanılmaktadır. Saç levhaların kullanıldığı yere göre özel olarak dizayn edilmiş farklı had taze betonda işlenebilmenin ölçülmesi ve deneylerde kullanılan aletlerinin irdelenmesi ve yükseklikleri ve özel geometrileri vardır. Hadve yüksekliği 4 cm'den yüksek olan trapez formları, kompozit döşemelerde kalıp ve donatı olarak da kullanılır.

Şekil 1 Kullanım Alanlarına Göre Farklı Levha Profilleri
� Buhar Kesici Tabaka
Buhar geçişi, su buharı kısmi basıncı yüksek olan hacimlerden düşük olan hacimlere doğru yönlenmektedir. Yoğuşmanın oluşmasını sağlayan sebepler, sıcaklık farkı ve buhar basınç farkıdır. İç mekandaki hava içindeki buhar çatıya doğru yükselip soğuk bir yüzeye çarptığında su taneciklerine dönüşür.
Metal çatı üzerinde kullanılan lifli ısı yalıtım malzemelerinin ısı yalıtım özelliğini sürdürebilmesi için bünyesine girecek, yoğuşmadan kaynaklanan su miktarının ısı yönetmeliği şartnamesine uygun olarak kontrol edilebilir olması gereklidir. Bu amaçla trapez levhanın üzerine ısı tutucu tabakayı yerleştirmeden önce buhar kesici tabakanın serilmesi sağlıklı bir çatı sistemi elde edilebilmesi açısından büyük önem taşır. Buhar kesici olarak bitümlü örtüler kullanılabileceği gibi uygulamada sıklıkla en az 250 mikron kalınlıkta polietilen folyolar kullanılmaktadır. XPS levhaların metal çatılarda kullanıldığı durumlarda buhar kesici kullanılmayabilir. Buhar kesici tabakanın ek yerleri sızdırmazlık sağlanacak şekilde yalıtılmalıdır.
� Isı Tutucu Tabaka
Üst yüzeyi su yalıtım örtüsü kaplı hafif metal çatılarda ısı tutucu tabakası olarak, poliüretan, taşyünü,veya XPS Polistiren sert köpük kullanılabilir.
� Poliüretan, TS 825'e uygun kalınlıkta ve TS EN 13165 standartlarına göre TSE belgeli, yanma sınıfı B1 olan sandviç panellerde çatı ve cephe tiplerinde min. 40kg/m3 yoğunlukta olmalıdır. (Şekil 8)
� Taş yünü TS 825'e uygun kalınlıkta ve TS 901 EN 13162 standardına göre TSE belgeli yanma sınıfı A sınıfı Birim hacim kütlesi min. 150 kg/m3, Basma dayanımı min. 50 kPa olmalıdır. (Şekil 7)
� XPS, TS 825'e uygun kalınlıkta ve TS 11989 EN 13164 standardına göre TSE belgeli yanma sınıfı B1 olan sandviç panellerde, en az 30 kg/m3 yoğunluklu basınç dayanımı en az 200 kPa olmalıdır. (Şekil 9)
Poliüretan ile ilgili malzeme özellikleri: İzoder Web Sitesi / Isı Yalıtımı / Çatılarda Isı Yalıtımı (pdf dosyası sayfa 11-Bu aynı zamanda Bina ve Tesisatta Isı Yalıtımı Genel Teknik Şartnamesi, İzoder Yayını Sf.61J diğer Taşyünü ve XPS ile ilgili malzeme özellikleriyle ilgili standartlar: TS 11758-2 (Polimer Bitümlü Örtüler-Su yalıtımı için eritme kaynağıyla birleştirilerek kullanılan- Bölüm 2: Uygulama Kuralları) sy.3; 1.Projelendirme Kuralları Başlığı altında 1.1.3 Isı Yalıtım Katmanı Çizelge 1'den alınmıştır.
Slâpı yüksekliğiDD 8 m/ den azDD | Yapı yüksekliği DD 8 - 20 m. arasında | ||
Merkez bölüm | 3 ad ./m2 | 24 ad ./m2 | |
Kenar bölüm | 4 ad ./m2 | 26 ad ./m2 | |
Köşe bölüm | 6 ad ./m2 | 29 ad ./m2 |
Bitüm Tabakalı Taşyünü levhaların kullanılması ısı tutucu tabaka üzerine uygulanacak olan SBS katkılı elastomerik bitümlü polyester keçe taşıyıcılı birinci su yalıtım örtüsünün uygulamasının kolaylıkla yapılabilmesini sağlar. (Şekil 6) Ekstrüde polistiren ısı yalıtım levhalarının kullanılması durumunda, birinci kat su yalıtım örtüsünün uygulamasında şalümo alevi uygulaması yapılamayacağı için kendinden yapışkanlı bitümlü su yalıtım örtüsü tercih edilmelidir. (Şekil 5) İkinci kat olarak yine polyester taşıyıcılı SBS katkılı elastomerik ve mineral kaplı su yalıtım örtüsü kullanılacaktır.
Isı yalıtım tabakası kalınlığı TS 825'e göre yapılan hesaplamayla tayin edilmeli, ısı tutucu tabakanın çift kat uygulanması durumunda tabakalar arasında şaşırtma yapılması gereklidir. Mineral yünlü sandviç çatı panellerde izolasyon çekirdeğinin montajdan önce ve sonra ıslanmaması için gerekli tedbirler alınmalıdır. Poliüretan ısı tutucu tabakanın kullanıldığı uygulamalarda poliüretan tabakanın üzeri kraft kağıt kaplanmış olmalıdır. (Şekil 8)
Özel Mekanik Bağlantı Elemanları
Isı tutucu tabakaların çatı üzerinde gelişen rüzgarın farklı yönlerden gelen türbülans ve emme kuvvetlerine karşı koyabilmesi için hesaplama yöntemiyle bulunacak sayıda özel mekanik tespit elemanlarıyla saç levhalara sabitlenmesi gereklidir. Birinci kat örtü uygulamasında su yalıtım örtüsünün boylarında 10 cm lik bindirme noktalarında boy ek yerleri altında kalacak şekilde ilave olarak mekanik bağlantı elemanları ile sabitlenmesi gereklidir.
Mekanik tespit elemanlarının, eğer taş yünü ısı tutucu tabaka kullanılacaksa üzerine basıldığında, su yalıtım örtüsünü delmemesi için saç vidasının plastik kılıf içerisinde hareket edebilecek özellikte olması göz ardı edilmemesi gereken önemli bir noktadır. Birinci kat su yalıtım örtüsünün mekanik montaj hesaplama şekli, yapının boy, en, ve yüksekliği ile ilişkilidir. (Şekil 2-Şekil 3) Çatının kenar, köşe ve orta bölümlerine göre rüzgarın emiş kuvvetleri farklılıklar göstermektedir. Aşağıdaki tabloda pratik deneyimlere ve gelişmiş test yöntemlerine dayanılarak verilmiş minimum mekanik tespit adetleri yer almaktadır.

Şekil 3 Yapı En - Boy İlişkisi
Su Yalıtım Katmanları
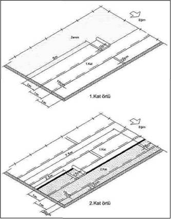
Saç levhaların kullanıldığı endüstriyel yapıların çatılarında göz ardı edilmemesi gereken en önemli faktör, metalin ısı farkları etkisiyle yaşayacağı genleşmelerdir. Bu açıdan hafif metal çatılarda ısı tutucu tabaka üzerinde kullanılacak su yalıtım örtüsü, elastomerik katkılı, yüksek elastik deformasyon özelliğine sahip polyester taşıyıcı 11 SBS katkılı bitümlü su yalıtım örtüşüdür. Birinci kat su yalıtım örtüsü eğer taş yünü ısı tutucu tabaka kullanılmışsa, yüzeye tam yapıştırma tekniği uygulanarak yapıştırılmalıdır. SBS katkılı bitümlü su yalıtım örtüsünün uygulama şekli TS 11758-2 de belirtildiği şekilde prensip olarak birinci uygulama katındaki kısa ve uzun ek yerlerinin 2. uygulama katındaki ek yerleri ile ortalanarak yapılması esasına dayanır.(Şekil 4)

Şekil 4 Su Yalıtım Örtüsü Uygulama Şekli (TS 11758 - 2)
Isı tutucu tabakanın XPS malzemeden seçilmesi durumunda, mekanik sabitlemeler yapıldıktan sonra, XPS ısı yalıtım levhalarının üzerinde şalümo uygulaması yapılamayacağından birinci kat su yalıtım örtüsü olarak kendinden yapışkanlı özel bitümlü su yalıtım örtüleri tercih edilmelidir. (Şekil 5 -Şekil 9) Birinci kat örtü üzerine yine SBS katkılı elastik deformasyonu yüksek su yalıtım örtüsü şalümo uygulamasıyla yapıştırılmalıdır. Son kat su yalıtım örtüsünün dış koşullara ve ultraviyole etkisine direnç göstermesi açısından mineral kaplı örtü tercih edilmelidir. Çatıda oluşacak ısıl hareketleri minimize etmek amacıyla uygulanacak son kat mineral kaplamalı bitümlü su yalıtım örtüsünün minerallerinin açık renkli olması tercih edilmelidir.

Şekil 5 XPS Üzerine Kendinden Yapışkanlı

Su Yalıtım Örtüsü Uygulaması
Şekil 6 Metal Levha Üzerine Taşyünü Üzeri Bitümlü Su Yalıtım Örtüsü Uygulaması

Şekil 7 Hafif Metal Çatı Kesit (Taşyünü Uygulama)

Şekil 8 Hafif Metal Çatı Kesiti (Taşyünü Uygulama)

Şekil 9 Hafif Metal Çatı Kesiti
(Poliüretan Üzeri Kraft Kağıt Kaplı Uygulama)

Şekil 10 Hafif Metal Çatı Kesit (XPSIsı Yalıtımlı Uygulama)

Şekil 11 Hafif Metal Çatı Kesiti
(Poliüretan Üzeri Kraft Kağıt Kaplı Uygulama)
Kaynaklar
1. Polimer Bitümlü Örtüler - Su Yalıtımı İçin Eritme Kaynağıyla Birleştirilerek Kullanılan Bölüm 2 Uygulama Kuralları
2. BTM Teknik Yayınları, 2004
Hiç yorum yok:
Yorum Gönder